



JRM
Proyecto Vivienda Unifamiliar / Año 2023 / Ubicación: Cerro Ventana, San Carlos de Bariloche. / Superficie Cubierta 78m2 / Estado: en curso.
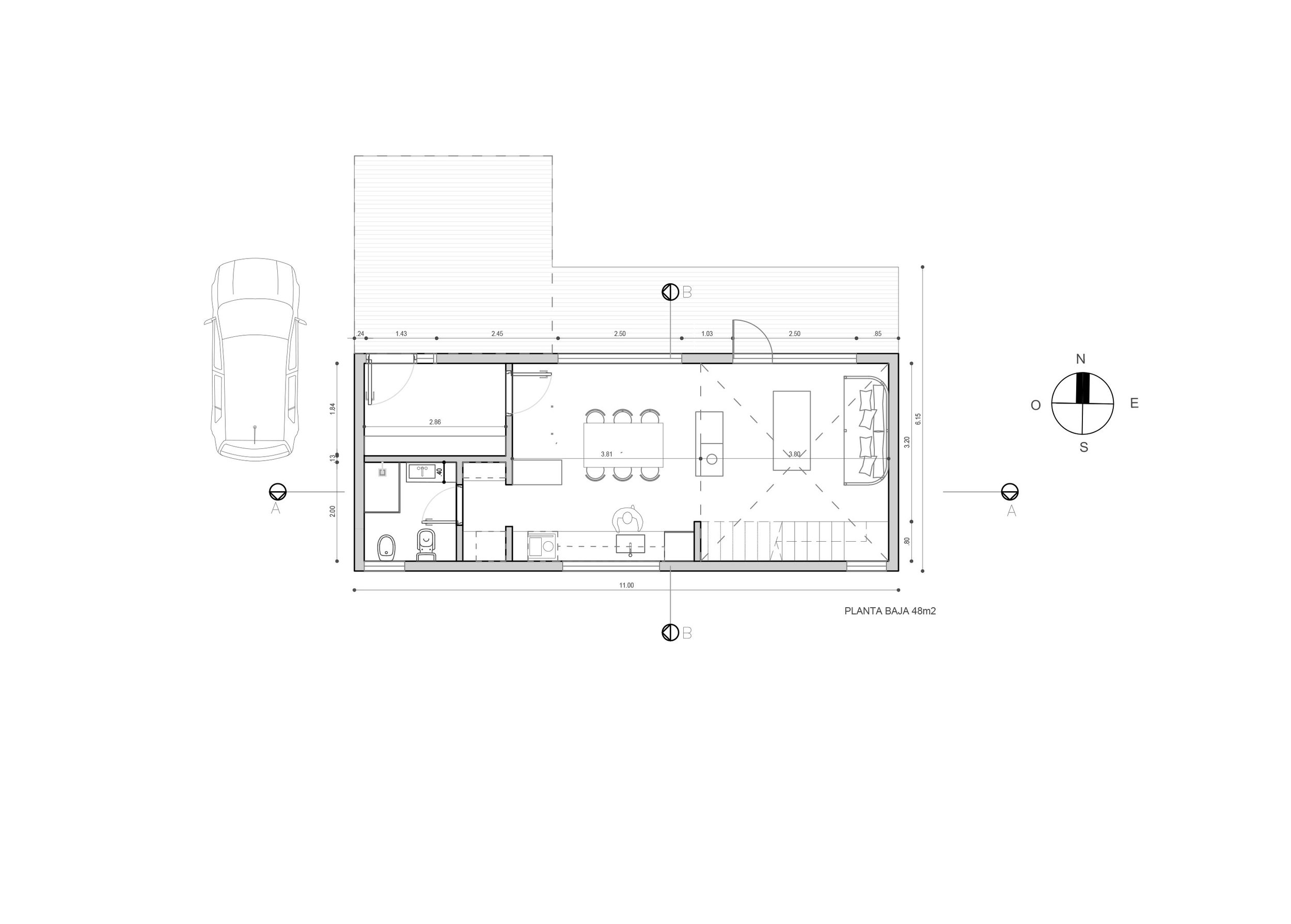
Proyecto Vivienda Unifamiliar / Año 2023 / Ubicación: Cerro Ventana, San Carlos de Bariloche. / Superficie Cubierta 78m2 / Estado: en curso.